Spherical Disc Butterfly Valve
Uni-Tech make Spherical Disc Type Butterfly Valves are giving extremely high performance at very lower operating torque with some significant features like lower weight, compact design, replaceable seat and easy maintenance. PTFE seat ensures smooth working life under temperature Upto 210” centigrade. For higher size these valves are stringly recommended.
Technical Specification
| Design Standard | API 609 |
|---|---|
| Face to Face Standard | BS 5155 / API 609 Category B |
| Top Flange Drilling | ISO 5211 |
| Inspection & Testing | BS 6722 Part-1 / API 598 / EN 12233-1 |
| Flange Standard | ANSI 150 / IS 6392 NP 1.0 / 1.6 |
Valve Inspections Testing
| Test | PN 10 |
|---|---|
| Body (Hyd.) | 15 Kg/cm² |
| Seat (Hyd.) | 10 Kg/cm² |
| Seat (Air.) | 7 Kg/cm² |
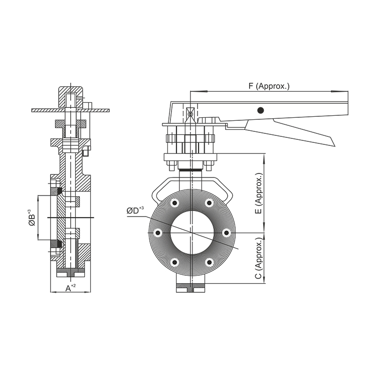
Technical Specification
All Dimensions are in mm Unless Specified
| Inch | MM | A | ∅B | C | ∅D | E | F |
|---|---|---|---|---|---|---|---|
| 1½" | 40 | 42 | 40 | 51 | 85 | 85 | 180 |
| 2" | 50 | 45 | 51 | 58 | 98 | 90 | 180 |
| 2½" | 65 | 48 | 61 | 63 | 115 | 102 | 180 |
| 3" | 80 | 48 | 72 | 70 | 131 | 120 | 215 |
| 4" | 100 | 54 | 100 | 86 | 159 | 134 | 215 |
| 5" | 125 | 57 | 123 | 105 | 188 | 154 | 265 |
| 6" | 150 | 57 | 143 | 120 | 219 | 170 | 265 |
| 8" | 200 | 63 | 192 | 145 | 272 | 200 | 325 |
| 10" | 250 | 72 | 240 | 175 | 325 | 230 | - |
| 12" | 300 | 83 | 290 | 215 | 385 | 270 | - |
